utrustning
Lägenhet för 6 personer med kök
3x sovrum, 3x dubbelsängar
Luftkonditionering med full yta
2x badrum toalett
4x TV
tvättmaskin
privat parkering
avstånd
• Flygplats: 10 km
• Hav, strand: 10 m
• Barnparadis 500 m
• Stad 350 m
• Supermarket: 300 m
• Zadar 10 km
Kontakta
Put Vodotica 30, 23206 Sukosan, Kroatien
436764503721
sanja.gaspar@gmx.at
Din lyxiga lägenhet direkt på stranden för din avkopplande semester
Om du letar efter en modern villa med hisnande panoramautsikt är Villa LaRimar Sukosan rätt plats för din drömsemester. Denna vackra villa ligger på första havslinjen och erbjuder en vacker utsikt över Adriatiska havets pärla och öarna. Bara 10 m från havet är Villa LaRimar ett utmärkt val för dig som letar efter en lyxig sommarsemester i en aktiv miljö, perfekt för en sommarsemester med familjen eller för att umgås med vänner.
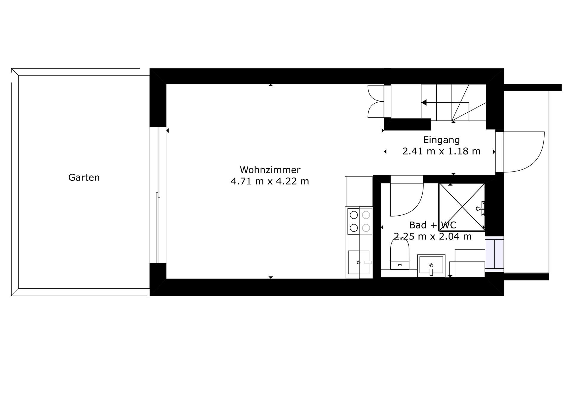
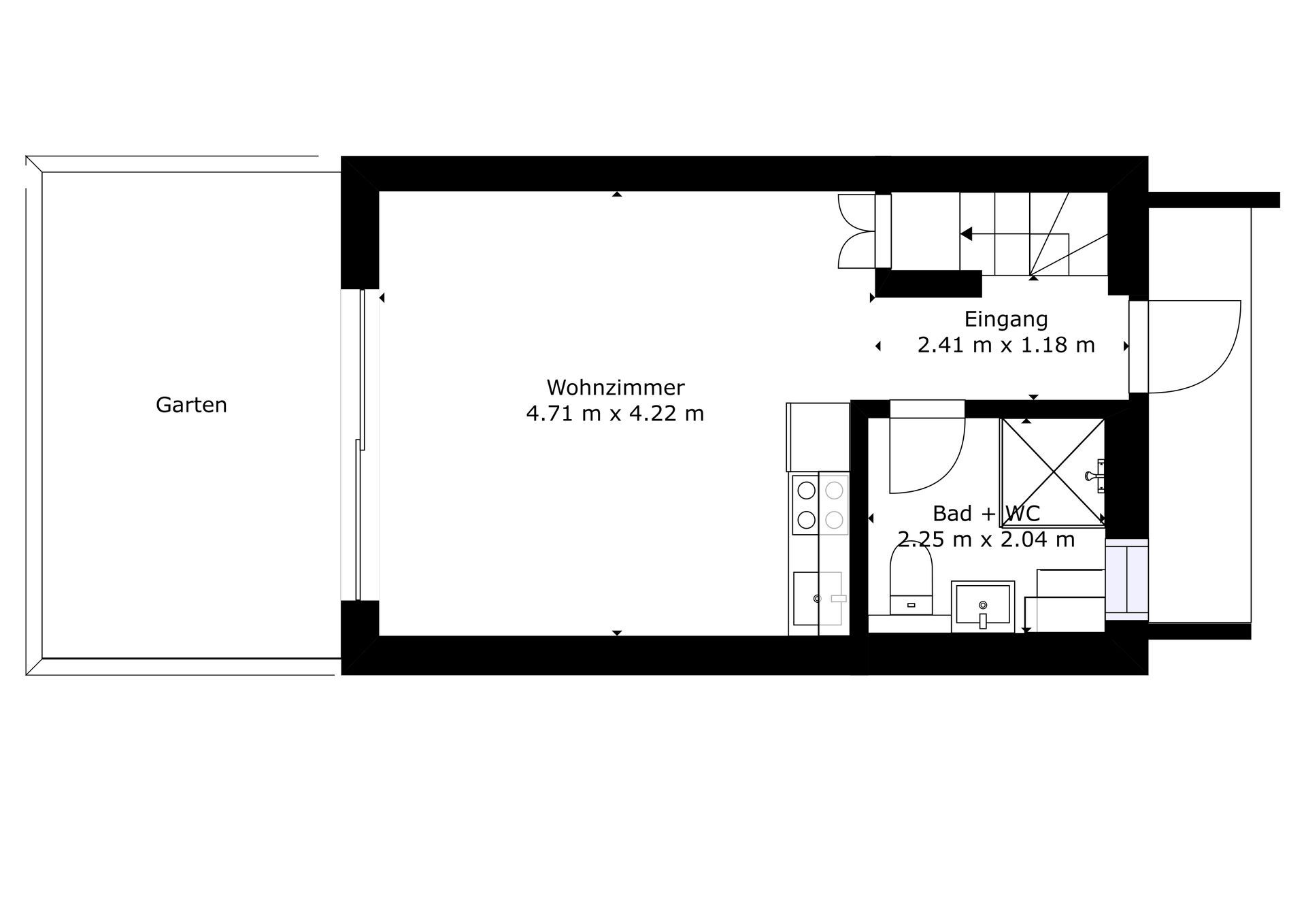
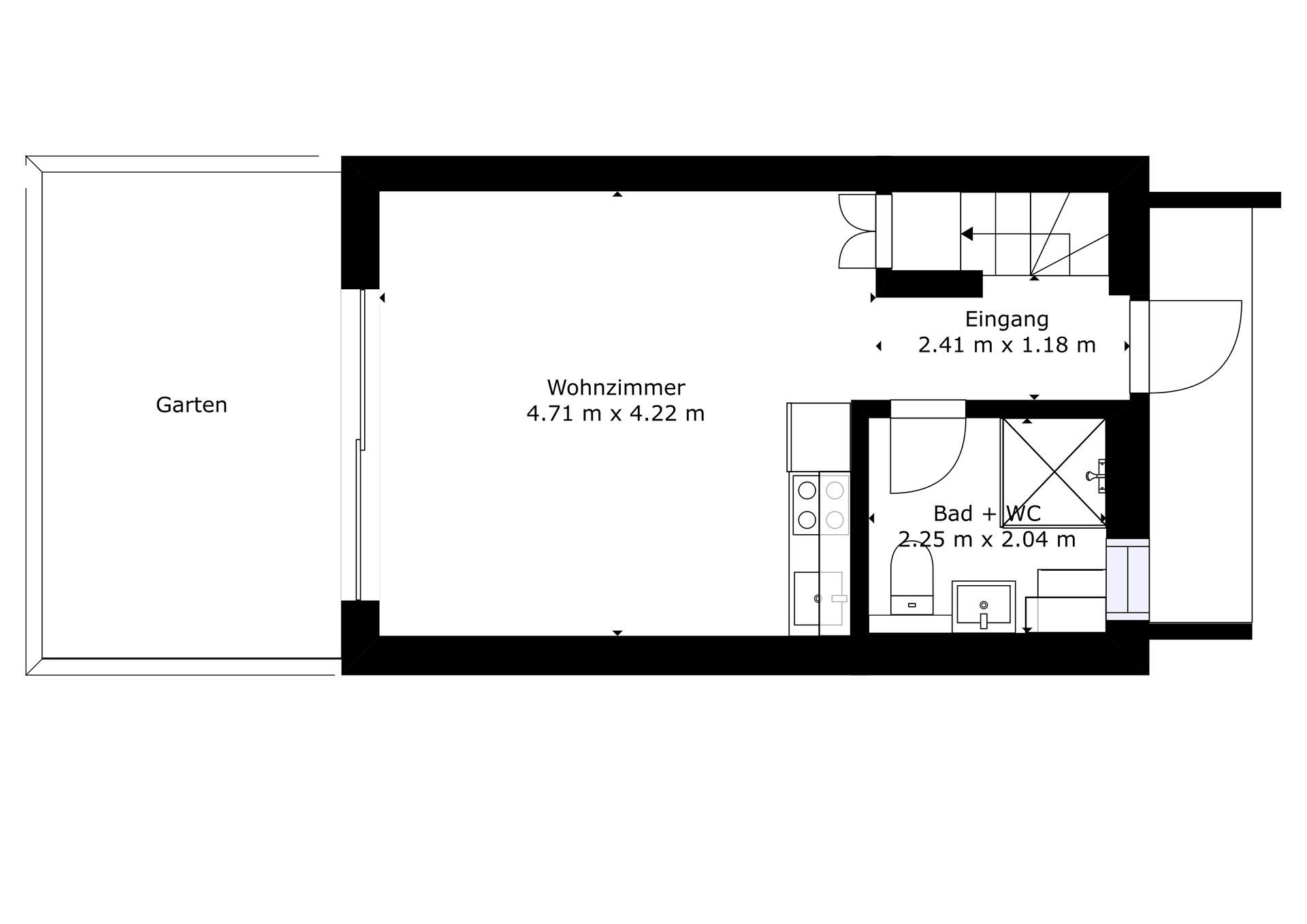
Villan på 88 m² rymmer upp till 6 2 personer i 3 lyxigt inredda sovrum. På bottenvåningen i villan finns ett harmoniskt inrett soligt vardagsrum och ett fullt utrustat kök med matplats samt ett badrum med toalett. På första våningen i villan hittar du 2 moderna sovrum med badrum. Gästerna har också tillgång till en kolgrill utomhus, privat parkering och en lekplats.
Boka din lägenhet nu
27
28
29
30
1
2
3
4
5
6
7
8
9
10
11
12
13
14
15
16
17
18
19
20
21
22
23
24
25
26
27
28
29
30
31















